東莞市佑億精密自動化設備有限公司
國家高新技術企業 專注金屬行業自動化設備解決方案提供商
4008-610-616
? 80% 從每臺沖床配2-3人到1人可管理5臺沖床,節省90%以上的人工成本
? 30% 機械手無需休息、操作快速,縮短30%以上的時間,大幅提升生產效率
? 30% 機械化操作且自帶糾編功能,避免人工操作的誤差,廢品率降低30%以上
多機連桿式機械手特點:
1、產品部件品質穩定可靠,大大降低客戶維護成本。
2、有效節省人工 ,降低人工成本,避免因人員流動對生產造成不利影響,高自動化生產線,強化作業安全性,提升產能,穩定產品質量,有效降低不良率及成本。
3、操作界面及產品外觀依人體功能學而設計。
4、采用人機界面和PLC操作系統,高性能之AC伺服驅動,運轉平滑,并在運轉中進行實時監控。
5、移送距離可依客戶之沖床或模具實際排列間距訂制。
6、依不同客戶產品之沖壓工藝,可連接2~10臺沖床組成自動化沖壓生產線。
7、通過PLC采集連接沖床主檔上的死點信號,驅動所有連接沖床同步動作。
8、吸著方式可為真空吸盤或電磁吸鐵,氣動夾具可混合使用,適應不同工作。
9、進料方式,卷料可搭配偏擺送料機、NC伺服送料機或三合一送料機,片料可搭配雙堆式積料架。
10、連桿式機械手可根據不同客戶的產品工藝選配積料架,反轉機,NC滾輪送料機,攻牙機等。
連桿式機械手適用范圍:
適用范圍廣泛,如計算機、電子、家電、汽車等各種鈑金沖壓件之移送
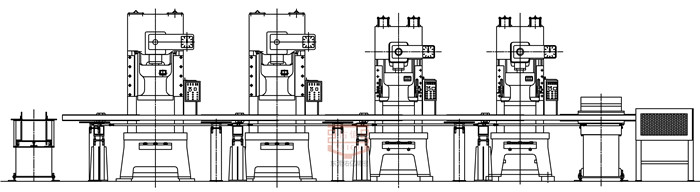
沖床連桿式機械手示意圖

連桿式機械手配沖床操作工作視頻
多機連桿式機械手參數規格
型 號 | TSD-1200/60 | TSD-1300/60 | TSD-1500/60 | TSD-1600/60 | TSD-2000/60 |
移送行程 | 1200 | 1300 | 1500 | 1600 | 2000 |
舉升行程 | 60 | 60 | 60 | 60 | 60 |
載重(單支吸料臂)kgs | 1 | 1 | 1.5 | 2 | 3 |